EN ALQUILER: EXCLUSIVO ÁTICO DÚPLEX EN PLENO CORAZÓN DE VIVAND (ESCALDES)

3.400 €

29,57 €/m2

29 imágenes

Características

  • Ascensor
  • Aire acondicionado
  • Garaje
  • Calefacción

Descripción

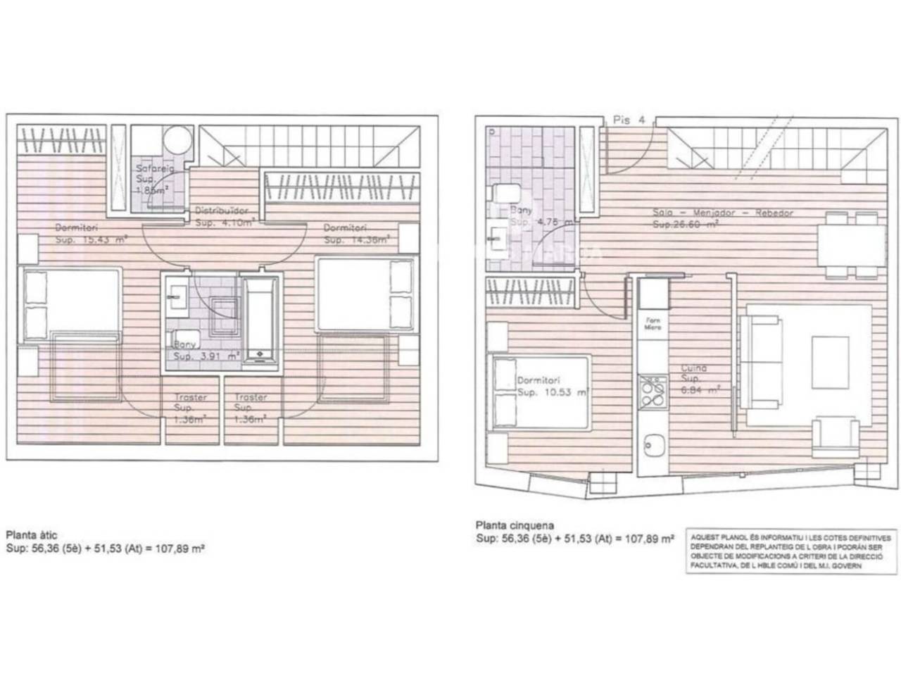
Descubre este fantástico ático dúplex de 110,55 m², ubicado en una de las zonas más céntricas y demandadas de Escaldes, en plena avenida Carlemany, con todos los comercios y servicios a tus pies!.
La vivienda se distribuye en dos cómodas plantas:
?? Planta baja
Amplio y acogedor salón-comedor lleno de luz natural, cocina independiente totalmente amueblada, un dormitorio doble con armarios empotrados y un baño completo.
?? Planta superior
Dos dormitorios dobles adicionales, ambos con armarios empotrados, un segundo baño y una práctica zona de lavandería, pensada para el día a día.
?? Confort y eficiencia de última generación
Edificio de reciente construcción con alta eficiencia energética, equipado con aerotermia, que garantiza calefacción en invierno y aire acondicionado en verano. La calefacción por suelo radiante y las ventanas de triple acristalamiento aseguran el máximo confort y aislamiento durante todo el año.
?? Incluye plaza de garaje
Cuenta además con una cómoda plaza de garaje de 14,22 m², un auténtico valor añadido en esta ubicación.
Este ático dúplex lo tiene todo: amplitud, luz natural, confort, eficiencia y una ubicación inmejorable.

Una vivienda ideal para quienes buscan calidad de vida en el centro de la ciudad.
? ¡Una oportunidad única que no puedes dejar escapar! ? Ven a visitarlo! +376 650 555
Índice de referencia de precios de alquiler: -

Ref: L-0059

Propiedad publicada por:

Formulario de Contacto:

Contactar con el anunciante
  • Visitas: 831
  • Última modificación: 28/01/2026

Simulador hipoteca

pisos.ad

Te puede interesar

  • 195 m2
  • 3
  • 2

Ático de alquiler en Escaldes Engordany, 3 habitaciones, 195 metros

4.490 € /mes
  • 163 m2
  • 4
  • 3

Increíble ático dúplex en una zona exclusiva de Escaldes-Engordany

3.950 € /mes
  • 140 m2
  • 3
  • 2

Ático-Duplex en Alquiler: Naturaleza y Comodidad a 5 Minutos del Centro

2.500 € /mes
  • 184 m2
  • 3
  • 2

Ático de lujo en una zona muy tranquila con box de 2 plazas de parking

1.490.000 € /mes