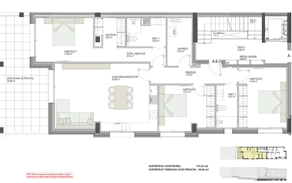
Pis en venda a Santa Coloma, 3 habitacions, 131 metres

784.656 €

5989,74 €/m2

5 imatges

Característiques

  • Cuina Equipada
  • Terrassa
  • Armaris encastats
  • Safareig
  • Ascensor
  • Vidres dobles
  • Traster
  • Porter automàtic
  • Assolellat
  • Cèntric
  • Cuina
  • Internet - Wifi
  • TV
  • Garatge
  • Calefacció

Descripció

Promoció "El Cedre" a Santa Coloma, Andorra
Descobreix El Cedre, una exclusiva promoció d'habitatges situada en Santa Coloma, en el cor d'Andorra la Vella. Aquest modern edifici ofereix una combinació perfecta de disseny, confort i qualitat, amb el marc incomparable dels Pirineus com a teló de fons.
Característiques de la promoció:
Ubicació privilegiada:
Situat en la Avinguda d' Enclar, l'edifici es troba a pocs minuts del centre neuràlgic d'Andorra, envoltat de naturalesa, serveis i prop de les principals estacions d'esquí del Principat.
Habitatges d'alta qualitat:
29 apartaments d'1 a 4 dormitoris, amb superfícies des de 53 m² fins a 168 m².
Àmplies terrasses amb impressionants vistes.
Acabats de luxe: sòls de parquet, finestres de triple cristall, cuines equipades amb electrodomèstics TEKA, i banys amb dutxes de disseny i sanitaris Grohe.
Comoditats addicionals:
33 places d'aparcament.
37 trasters.
Exterior revestit amb ceràmica i aïllament tèrmic d'alta eficiència.
Entorn exclusiu:
Situat a 1.030 metres d'altitud, aquesta promoció es troba a:
5 minuts de Caldea, el famós centre termolúdic.
25 minuts de Grandvalira, el domini esquiable més gran dels Pirineus.
A pocs quilòmetres de llocs emblemàtics com el Mirador del Roc del Quer o el Pont Tibetà de Canillo.
Data de lliurament:
Primer semestre de 2026.
Els preus no inclouen places d'aparcament ni trasters, però aquestes opcions estan disponibles per a la seva compra. Les places d'aparcament costen entre 28.000 i 43.000 €, i els trasters, 8.000 €.
Contacta amb nosaltres per a més informació i assegura el teu habitatge en aquesta exclusiva promoció!
  • Visites: 160
  • Darrera modificació: 20/10/2025

Simulador hipoteca

pisos.ad

Et pot interessar

  • 76 m2
  • 2
  • 1

En venda pis de 2 habitacions a Santa Coloma

374.984 €
  • 81 m2
  • 2
  • 1

PIS EN VENDA A SANTA COLOMA

395.000 €
  • 0 m2
  • 3
  • 2

Pis en venda a Santa Coloma, 3 habitacions

651.551 €
  • 117 m2
  • 3
  • 2

Pis en venda a Santa Coloma, 3 habitacions, 117 metres

592.319 €